5月26日,中国科学院电工研究所延庆太阳能热发电实验基地发布“混凝土顶盖型跨季储热实验水体采购项目”和“土工膜顶盖型跨季储热实验水体采购项目”两个竞争性谈判公告。两个项目均为太阳能集热系统一年四季将太阳能系统收集的热量储存于跨季储热池,采暖季时该池体热水供建筑采暖。场址位于北京市延庆区中科院电工所太阳能热发电实验基地。
公告显示,获取两个谈判文件时间分别为2019年05月26日 12:07 至 2019年05月29日 17:00,2019年05月26日 12:15 至 2019年05月29日 17:00。
项目联系人:祖小龙
项目联系电话:010-68290506。
混凝土顶盖型跨季储热实验水体采购预算金额为 ¥100万元(人民币)
土工膜顶盖型跨季储热实验水体采购预算金额为¥60万元(人民币)
附:项目技术规格
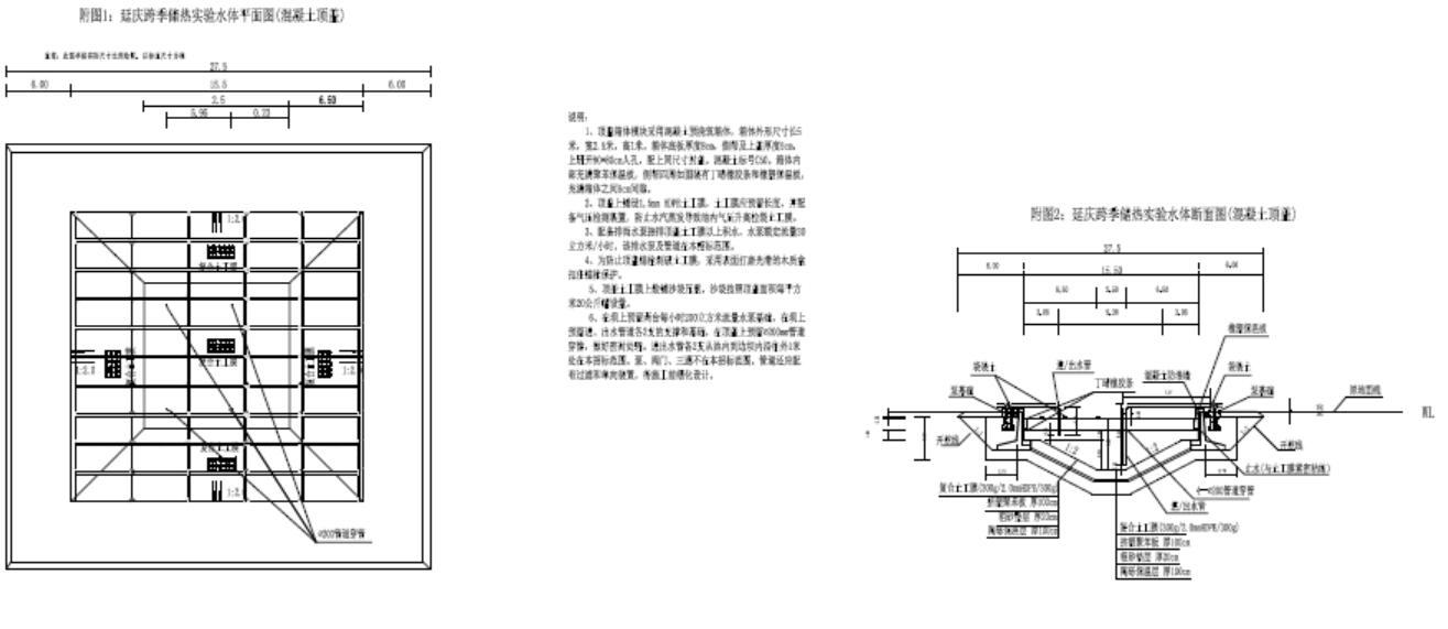
延庆混凝土顶盖型跨季储热实验水体
1、项目概况
项目场址位于北京市延庆区中科院电工所太阳能热发电实验基地。
太阳能集热系统一年四季将太阳能系统收集的热量储存于跨季储热池,采暖季时该池体热水供建筑采暖。
2、对储热池基本技术要求
(1)有效容量约为500立方米。
(2)采用开挖和回填方式建设储热池,储热池具有良好的耐温、保温与防渗措施。
(3)储热池设计使用寿命30年,寿命周期内,不出现渗漏,塌方情况。
(4)抗震设防烈度为8度。
(5)水池需要的耐温条件,本储热池水温每年呈周期性变化,池底温度15℃(4月末),最上层水温95℃(10月初)。
(6)储热池的温度分层情况,储热池内部呈上部水温高底部水温低的梯度分布,最高与最低水温差最大为50℃,即顶部水温为90℃时,下部水温约为40℃。
(7)做好工艺管道等设施与储热池结构的衔接,以满足工艺和结构稳定要求。
3、工作内容
项目建设内容包括:储热池土方开挖与回填、防渗工程、混凝土工程、顶盖、排雨水泵及管道、工艺管道(自池内至出水后坝內沿向外1米处)、管道的基础和支架、泵的基础的采购和施工。
4、工期要求
自中选通知书下发之日起45天完工。
甲方根据工程进度提供满足施工要求的地勘资料、工艺资料等前期资料,施工进度根据提供资料时间顺延。
5、成果要求
(1)按照图纸完成本标书的采购和施工工作。
(2)采购设备材料档案(包括材料检验报告、产品合格证等)及施工、验收文件1套。
*6.参加比选单位商务要求
(1)参加比选单位必须是在中华人民共和国境内(不含香港、澳门、台湾)注册的独立法人,具有增值税一般纳税人资格,未被处于责令停业、投标资格被取消、或者财产被接管、冻结和破产状态,企业正式运营时间应为三年以上;
(3)近五年具备2个以上混凝土水利工程或土工膜防护工程,且单个项目合同额100万以上的案例,目前工程运行状况良好;
(4)单位法定代表人为同一个人的2个及2个以上法人,母公司、全资子公司及其控股公司不得同时参加比选。
*以上要求参加比选单位必须同时满足,所提供的所有资质文件必须真实,且与投标人主体一致,如果需要年检的,请确保提供的文件复印件已年检合格,否则在评标时做废标处理。
延庆跨季储热水体(混凝土顶盖)图纸:

延庆土工膜顶盖型跨季储热实验水体
1、项目概况
项目场址位于北京市延庆区中科院电工所太阳能热发电实验基地。
太阳能集热系统一年四季将太阳能系统收集的热量储存于跨季储热池,采暖季时该池体热水供建筑采暖。
2、对储热池基本技术要求
(1)中国科学院先导A项目河北张家口涿鹿县黄帝城小镇100%可再生能源示范项目延庆实验土工膜顶盖型跨季储热水体一个,有效容量约为500立方米。
(2)采用开挖和回填方式建设储热池,储热池具有良好的耐温、保温与防渗措施。
(3)储热池设计使用寿命30年,寿命周期内,不出现渗漏,塌方情况。
(4)抗震设防烈度为8度。
(5)水池需要的耐温条件,本储热池水温每年呈周期性变化,池底温度15℃(4月末),最上层水温95℃(10月初)。
(6)储热池的温度分层情况,储热池内部呈上部水温高底部水温低的梯度分布,最高与最低水温差最大为50℃,即顶部水温为90℃时,下部水温约为40℃。
(7)做好工艺管道等设施与储热池结构的衔接,以满足工艺和结构稳定要求。
3、工作内容
项目建设内容包括:储热池土方开挖与回填、防渗工程、混凝土工程、顶盖、排雨水泵及管道、工艺管道(自池内至出水后坝內沿向外1米处)、管道的基础和支架、泵的基础的采购和施工。
4、工期要求
自中选通知书下发之日起45天完工。
甲方根据工程进度提供满足施工要求的地勘资料、工艺资料等前期资料,施工进度根据提供资料时间顺延。
5、成果要求
(1)按照图纸完成本标书要求的采购和施工工作。
(2)采购设备材料档案(包括材料检验报告、产品合格证等)及施工、验收文件1套。
*6.参加比选单位商务要求
(1)参加比选单位必须是在中华人民共和国境内(不含香港、澳门、台湾)注册的独立法人,具有增值税一般纳税人资格,未被处于责令停业、投标资格被取消、或者财产被接管、冻结和破产状态,企业正式运营时间应为三年以上。
(2 )具备水利水电工程施工总承包叁级及以上资质,或公路工程施工总承包叁级及以上资质,或市政公用工程施工总承包叁级及以上资质。
(3)近五年具备2个以上混凝土水利工程或土工膜防护工程,且单个项目合同额100万以上的案例,目前工程运行状况良好。
(4)单位法定代表人为同一个人的2个及2个以上法人,母公司、全资子公司及其控股公司不得同时参加比选。
*以上要求参加比选单位必须同时满足,所提供的所有资质文件必须真实,且与投标人主体一致,如果需要年检的,请确保提供的文件复印件已年检合格,否则在评标时做废标处理。